Leter du etter kontorlokaler i Stor-Oslo?

Vi finner umiddelbart kontorlokaler som passer din bedrift, selv før de blir annonsert. Helt gratis.
Gjør et søk nå

Amtmand Bloms gate 1

277–520 m² ledig fra januar 2026
Ønsker du å vite mer om eiendommen?
Vi undersøker om dette lokalet passer for deg!
Jeg vil vite mer

Nøkkelinformasjon

Etasjer
7
Bygningstype
Annen kontorbygning
Areal
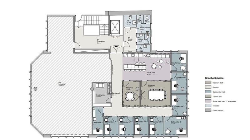
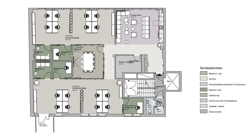
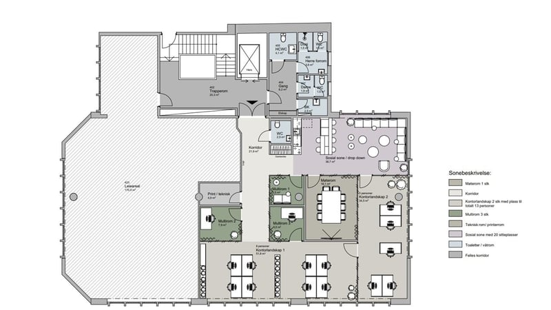
277–520 m²
Byggeår
1981
Sist renovert år
-
Energimerke

Fasiliteter

  • Sykkelparkering
  • Heis
  • Kantine (ikke tilgjengelig)
  • Kaffebar (ikke tilgjengelig)
  • Treningsrom (ikke tilgjengelig)
  • Garderobe (ikke tilgjengelig)
  • Dusj (ikke tilgjengelig)
  • Parkering (ikke tilgjengelig)
  • Elbillading (ikke tilgjengelig)
  • Takterasse (ikke tilgjengelig)
  • Resepsjon (ikke tilgjengelig)
  • Møterom (ikke tilgjengelig)

Kollektivtilbud - Nærmeste stoppesteder

  • Bragernes torg
    Buss
    Gangavstand2 min (160m)
  • Drammen stasjon
    Tog
    Gangavstand10 min (780m)

Søkeparametere

Flyttedato
januar 2026
Størrelse
0–300 000 m²

Dette blir naboene dine (6)

  • Nordic Innovators Norway AS
  • Keycee AS
  • Orakel Kapital AS
  • Manpower Staffing Services AS
  • As3 Norge AS
Ønsker du å vite mer om eiendommen?
Vi undersøker om dette lokalet passer for deg!
Jeg vil vite mer
Laster Henter andre søketreff