Leter du etter kontorlokaler i Stor-Oslo?

Vi finner umiddelbart kontorlokaler som passer din bedrift, selv før de blir annonsert. Helt gratis.
Gjør et søk nå

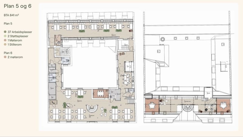
Øvre Vollgate 11

800–5 000 m² ledig fra desember 2025

Område

Aker Brygge, Tjuvholmen og Vika, også kjent som Oslos Central Business District (CBD), er et av Oslos mest attraktive næringsområder. Strøket kjennetegnes av moderne og historiske bygninger som huser store leietakere innenfor finans, jus, konsulentvirksomhet og teknologi. Området har en rekke restauranter, kafeer og kulturinstitusjoner. Beliggenheten ved sjøen og den sentrale plasseringen i byen gjør området til et viktig knutepunkt for næringsvirksomhet i Oslo.

Antatt 5 000 kr/m² i året

Prisen er et estimat, ikke den faktiske prisen
Normalt prisnivå: 4 500 kr/m² til 5 500 kr/m² per år
Toppleie: 6 500 kr/m² per år
Rehabilitering
Ønsker du å vite mer om eiendommen?
Vi undersøker om dette lokalet passer for deg!
Jeg vil vite mer

Nøkkelinformasjon

Etasjer
7
Bygningstype
Kontor- og administrasjonsbygning, rådhus
Areal
800–5 000 m²
Byggeår
1875
Sist renovert år
2025
Energimerke

Fasiliteter

  • Kantine
  • Kaffebar
  • Treningsrom
  • Garderobe
  • Dusj
  • Sykkelparkering
  • Heis
  • Resepsjon
  • Møterom
  • Parkering (ikke tilgjengelig)
  • Elbillading (ikke tilgjengelig)
  • Takterasse (ikke tilgjengelig)

Kollektivtilbud - Nærmeste stoppesteder

  • Wessels plass
    Buss
    Gangavstand2 min (140m)
  • Kontraskjæret
    Trikk
    Gangavstand2 min (160m)
  • Stortinget
    T-bane
    Gangavstand6 min (510m)
  • Nationaltheatret stasjon
    Tog
    Gangavstand11 min (900m)

Søkeparametere

Flyttedato
desember 2025
Størrelse
0–300 000 m²

Dette blir naboene dine (2)

  • Spond AS
  • Perspektiv AS
Ønsker du å vite mer om eiendommen?
Vi undersøker om dette lokalet passer for deg!
Jeg vil vite mer
Laster Henter andre søketreff