Leter du etter kontorlokaler i Stor-Oslo?

Vi finner umiddelbart kontorlokaler som passer din bedrift, selv før de blir annonsert. Helt gratis.
Gjør et søk nå

Philip Pedersens vei 11

400–1 300 m² ledig fra juli 2026

Område

Lysaker er et attraktivt næringsområde strategisk plassert på grensen mellom Oslo og Bærum, med utmerket tilgjengelighet via E18, tog og buss. Området har utviklet seg til å bli et av Norges mest betydningsfulle forretningssentre, med moderne kontorbygg som huser alt fra internasjonale selskaper til innovative oppstartsvirksomheter. Lysaker tilbyr et variert servicetilbud inkludert restauranter, butikker og treningssentre.

Antatt 2 600 kr/m² i året

Prisen er et estimat, ikke den faktiske prisen
Normalt prisnivå: 2 400 kr/m² til 2 800 kr/m² per år
Toppleie: 3 200 kr/m² per år
Ønsker du å vite mer om eiendommen?
Vi undersøker om dette lokalet passer for deg!
Jeg vil vite mer
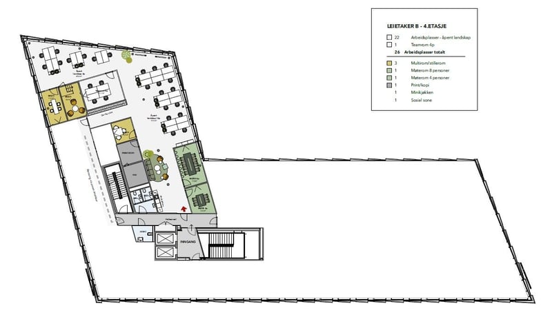
Løsning A: 1 300 kvm
Løsning B: 870 kvm
Løsning C: 430 kvm

Nøkkelinformasjon

Etasjer
5
Bygningstype
Kontor- og administrasjonsbygning, rådhus
Areal
400–1 300 m²
Byggeår
2019
Sist renovert år
2019
Energimerke

Fasiliteter

  • Kantine
  • Garderobe
  • Dusj
  • Parkering
  • Sykkelparkering
  • Heis
  • Resepsjon
  • Kaffebar (ikke tilgjengelig)
  • Treningsrom (ikke tilgjengelig)
  • Elbillading (ikke tilgjengelig)
  • Takterasse (ikke tilgjengelig)
  • Møterom (ikke tilgjengelig)

Kollektivtilbud - Nærmeste stoppesteder

  • Oksenøyveien
    Buss
    Gangavstand2 min (140m)
  • Stabekk stasjon
    Tog
    Gangavstand14 min (1140m)

Søkeparametere

Flyttedato
juli 2026
Størrelse
1 000 m²

Dette blir naboene dine (1)

  • Nemko Group AS
Ønsker du å vite mer om eiendommen?
Vi undersøker om dette lokalet passer for deg!
Jeg vil vite mer
Laster Henter andre søketreff