Leter du etter kontorlokaler i Stor-Oslo?

Vi finner umiddelbart kontorlokaler som passer din bedrift, selv før de blir annonsert. Helt gratis.
Gjør et søk nå

Økernveien 119

150–10 000 m² ledig fra desember 2025

Område

Økern ligger øst i Oslo, mellom Hasle, Løren og Risløkka. Området er under omfattende utvikling, fra å huse primært industri og lager til å bli et urbant senter. Økernsenteret og området rundt vil de kommende årene utvikles til næringslokaler og boliger, og blir et naturlig sentrum. Økern Portal åpnet i 2020 og tilbyr kontorlokaler, butikker og serveringssteder. Det er gode transportmuligheter, med kort vei til Ring 3 og T-bane.

Antatt 2 250 kr/m² i året

Prisen er et estimat, ikke den faktiske prisen
Normalt prisnivå: 2 000 kr/m² til 2 500 kr/m² per år
Toppleie: 2 600 kr/m² per år
Ønsker du å vite mer om eiendommen?
Vi undersøker om dette lokalet passer for deg!
Jeg vil vite mer
Illustrasjon lobby
Illustrasjon kantine
Illustrasjon toppetasje med takterrasse
Illustrasjon arbeidsetasje og sosial sone
Illustrasjon lager
Plan 1 – Lobby
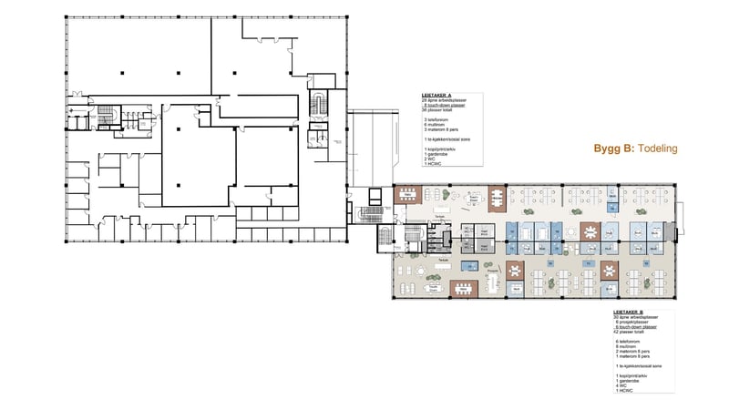
Plan 2 – Bygg B (To-deling)
Plan 2 – Bygg B (Z-deling)
Plan 3 – Bygg A/B (1 leietaker)
Plan 3 – Bygg A/B (To-deling)
Plan 4 – Én leietaker

Nøkkelinformasjon

Adresse
Økernveien 119, 0579 Oslo
Etasjer
6
Bygningstype
Fabrikkbygning
Areal
150–10 000 m²
Byggeår
1973
Sist renovert år
2025
Energimerke
Ukjent

Fasiliteter

  • Kantine
  • Kaffebar
  • Treningsrom
  • Garderobe
  • Dusj
  • Parkering
  • Elbillading
  • Sykkelparkering
  • Takterasse
  • Heis
  • Møterom
  • Resepsjon (ikke tilgjengelig)

Kollektivtilbud - Nærmeste stoppesteder

  • Haslevangen
    Buss
    Gangavstand3 min (270m)
  • Hasle
    T-bane
    Gangavstand6 min (500m)
  • Tøyen stasjon
    Tog
    Gangavstand17 min (1390m)
  • Carl Berners plass
    Trikk
    Gangavstand20 min (1600m)

Søkeparametere

Flyttedato
desember 2025
Størrelse
0–300 000 m²

Dette blir naboene dine (10)

  • Konsis AS
  • Kaffe Norge Holding AS
  • Wolt Services Norway AS
  • Zillica AS
  • Det Frivillige Skyttervesen
Ønsker du å vite mer om eiendommen?
Vi undersøker om dette lokalet passer for deg!
Jeg vil vite mer
Laster Henter andre søketreff