Leter du etter kontorlokaler i Stor-Oslo?

Vi finner umiddelbart kontorlokaler som passer din bedrift, selv før de blir annonsert. Helt gratis.
Gjør et søk nå

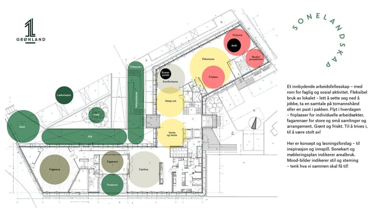
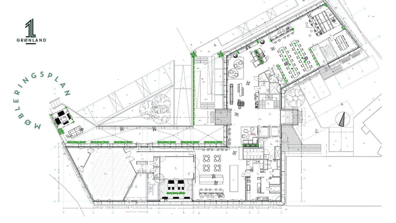
Grønland 1

190–470 m² ledig fra oktober 2025
Ønsker du å vite mer om eiendommen?
Vi undersøker om dette lokalet passer for deg!
Jeg vil vite mer

Nøkkelinformasjon

Etasjer
6
Bygningstype
Kontor- og administrasjonsbygning, rådhus
Areal
190–470 m²
Byggeår
2005
Sist renovert år
2016
Energimerke

Fasiliteter

  • Kantine
  • Treningsrom
  • Garderobe
  • Dusj
  • Parkering
  • Sykkelparkering
  • Heis
  • Møterom
  • Kaffebar (ikke tilgjengelig)
  • Elbillading (ikke tilgjengelig)
  • Takterasse (ikke tilgjengelig)
  • Resepsjon (ikke tilgjengelig)

Kollektivtilbud - Nærmeste stoppesteder

  • Drammen busstasjon
    Buss
    Gangavstand2 min (130m)
  • Drammen stasjon
    Tog
    Gangavstand5 min (400m)

Søkeparametere

Flyttedato
oktober 2025
Størrelse
0–300 000 m²

Dette blir naboene dine (5)

  • Renovasjonsselskapet For Drammensregionen IKS
  • Virinco AS
  • Kompan Norge AS
  • Falck Norge AS
  • 4service Facility AS
Ønsker du å vite mer om eiendommen?
Vi undersøker om dette lokalet passer for deg!
Jeg vil vite mer
Laster Henter andre søketreff