Tullinkvartalet

Område

Sentrum vest strekker seg fra Jernbanetorget i øst til Nationaltheatret i vest. Området har primært nærings- og kontorbygg, og kjennetegnes av en blanding av historisk og moderne arkitektur, med bygninger fra 1800-tallet til dagens moderne kontorbygg og butikklokaler. Sentrum vest har et rikt servicetilbud, med en lang rekke serveringssteder og butikker. Jernbanetorget, Oslo S og Nationaltheatret stasjon sørger for det beste transporttilbudet i Oslo.

Antatt kontorleiepris 3 700 kr/m² i året

Prisen er et estimat, ikke den faktiske prisen
Normalt prisnivå: 3 400 kr/m² til 4 000 kr/m² per år
Toppleie: 5 000 kr/m² per år

Ser du etter nye kontorlokaler – ikke bare Tullinkvartalet?

Utforsk ledige kontorlokaler i Oslo – inkludert området Sentrum vest. Akkurat nå har vi 3413 treff i 522 eiendommer i nærheten.

Data for bygg

Bygningsnummer
6272810745
Byggeår
1983
Bygningstype
Kontor- og administrasjonsbygning, rådhus
Sist renovert år
2014
Etasjer
13
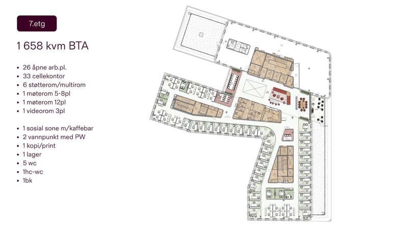
Totalt areal (BTA)
20 558 m²
Energimerke
Ukjent

Fasiliteter

  • Kantine
  • Kaffebar
  • Garderobe
  • Dusj
  • Sykkelparkering
  • Takterasse
  • Heis
  • Møterom
Kontor - Resepsjon/ Sosial sone
Kontor - Møterom
Kontor - Møterom
Kontor - Arbeidsplasser
Kontor - Møterom
Kontor - Cellekontor
Kontor - Eksklusiv takterrasse
Fellesareal - Takterrasse med 120 sitteplasser
Fellesareal - Takterrasse med 120 sitteplasser
Fellesareal - Dusj/ Garderobe med håndkleservice
Fellesareal - Dusj/ Garderobe med håndkleservice
Fellesareal - Cafè
Fellesareal - Cafè
Fellesareal - Personalrestaurant
Levende bygulv med cafeer og restauranter
Fasade
Adkomst kontor og bygulv
Levende bygulv med cafeer og restauranter
Lyskunst
Restaurant
Vinbar

Kollektivtilbud - Nærmeste stoppesteder

  • Tullinløkka
    Trikk
    Gangavstand2 min (140m)
  • Tullinløkka
    Buss
    Gangavstand2 min (140m)
  • Stortinget
    T-bane
    Gangavstand7 min (600m)
  • Nationaltheatret stasjon
    Tog
    Gangavstand10 min (820m)

Bedrifter som holder til på eiendommen (12)

  • Knowit AS
  • Sap Norge AS
  • Specsavers Norway AS
  • Advokatfirmaet Hjort AS
  • Den Norske Advokatforening